| name | Kommunales Abwasser und Trinkwasser für die Stadt Caaguazú |
| bauherr | Corposana (heute ESSAP), Asunción (Paraguay) |
| kunde | ARGE OBRASAN, Asunción (Paraguay) |
| ort | Caaguazú (Paraguay) |
| dauer | beginn märz 2000 |
Der frühere staatliche Wasserversorger erhielt über die Interamerikanische Entwicklungsbank die Finanzierung für Projekte zur Wasserver- und Abwasserentsorgung in verschiedenen Städten.
Die ARGE OBRASAN wurde beauftragt für die Durchführung der Arbeiten in der Stadt Caaguzú mit etwa 35,000 Einwohnern.


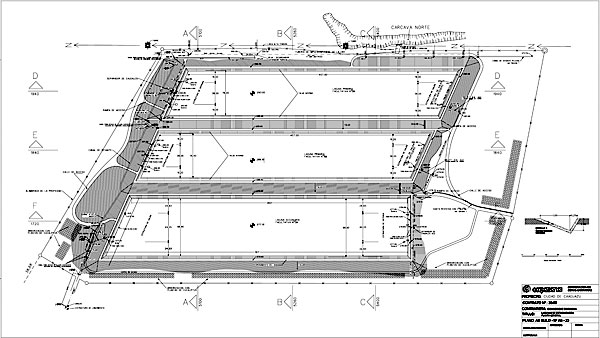
Abwasserreinigung: Zulaufrechen(l), Teichkläranlage, Auslaufbauwerk (r)
leistungen
Projektleitung, Einkauf und Inbetriebnahme für die ARGE:
Montage- + Werkstattplanung, Alternativplanung:

sewage treatment ponds ©corpoasana


wastewater pumping station (l), potable water pumping station (r)

potable water distribution center

wastewater treatment plant, aerial view