| name | Erweiterung der vorhandenen Hydrantenpumpstation im Tanklager des Flughafens München um drei weitere Pumpenlinien |
| auftraggeber | Flughafen München GmbH, München Sektorenauftraggeber, an der Gesellschaft sind die Stadt München, der Freistaat Bayern und die Bundesrepublik Deutschland beteiligt |
| ort | Flughafen München |
| projektdauer | beginn Juni 2013 ende Frühjahr 2014 |
Der Flughafen München führt ein ausgedehntes Erweiterungsprogramm durch, bei dem unter anderem ein neuer Abfertigungssatellit gebaut wird. Für die rasche und effektive Abfertigung, wird in erdverlegten Leitungen Flugbetriebsstoff aus dem Tanklager zu den Flugzeugpositionen gepumpt und die Flugzeuge über Hydranten betankt.
Für die zusätzlichen Flugzeugpositionen muß die Kapazität erhöht und die vorhandene Hydrantenpumpstation um drei weitere Pumpenlinien erweitert werden.

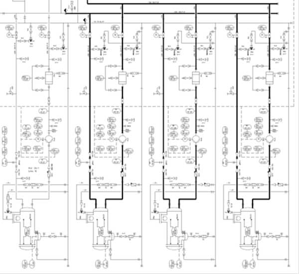
Ausführungsplanung der Hydrantenpumpstation am Flughafen München
tätigkeiten
Planung der maschinen- und elektrotechnischen Anlagen, der Prozessautomatisation und der Bautechnik für drei weitere Pumpenlinien für brennbare und wassergefährdende Stoffe. Die Arbeiten für die Erweiterung werden bei laufendem Betrieb eines internationalen Großflughafens durchgeführt.
Die erbrachten Ingenieursleistungen beinhalten daher, organisatorische Maßnahmen zu Bauabwicklung ohne Unterbrechung des Betankungsbetriebs.
Die Leistungen wurden in Anlehnung an die HOAI für Ingenieurbauwerke für die Versorgung mit wassergefährdenden Flüssigkeiten und der technischen Ausrüstung für nutzungsspezifische Anlagen erbracht.
technische projektbeschreibung
illustration

Ausschnitt aus dem Rohrleitungs- und Instrumentenfleißbild (R&I) der Erweiterung der Hydrantenpumpstation